Tilava perheasunto idyllisessä kivitalossa!

102 m² |

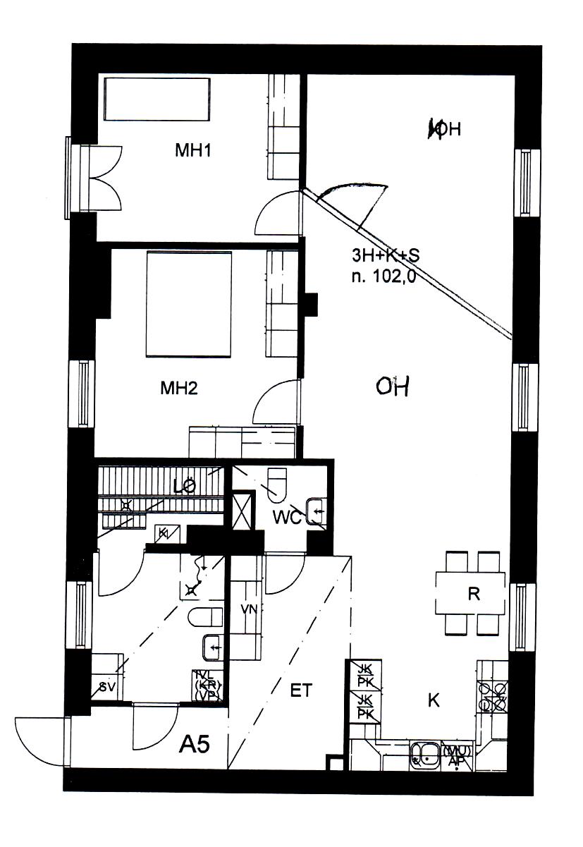
Vesikoskenkatu 1 , 32200 Loimaa | 4h+k+s=102m2

Tämä upea ja tilava 102 m²:n asunto sijaitsee Loimaan keskustassa, tarjoten loistavat yhteydet ja palvelut aivan käden ulottuvilla. Vuonna 1928 valmistunut rakennus on kokenut mittavan saneerauksen vuonna 2014, jolloin se muutettiin asuin- ja liikekiinteistöksi. Kolmannen kerroksen asunto on erinomaisessa kunnossa ja sen läpi talon ulottuvat ikkunat tuovat runsaasti luonnonvaloa. Asunnossa on kaksi makuuhuonetta, joissa on kauniit tammiparkettilattiat. Keittiö on hyvin varusteltu, ja olohuoneen parkettilattia luo lämpimän ja kutsuvan tunnelman. Erillinen WC ja kylpyhuone lattialämmityksellä lisäävät asumismukavuutta. Oma sauna tarjoaa rentoutumishetkiä arjen keskellä. Asunto-osakeyhtiö As. Oy Loimaan Oskarinpiha tarjoaa mukavan ja rauhallisen asuinympäristön, jossa on hyvät pysäköintimahdollisuudet. Läheltä löytyvät kaikki Loimaan keskustan palvelut, koulut ja päiväkodit. Hyvät liikenneyhteydet ja lähellä sijaitseva juna-asema tekevät liikkumisesta vaivatonta. Tartu tilaisuuteen ja tee tästä valoisasta ja tilavasta asunnosta perheesi uusi koti!

Varmista kohteen tietojen oikeellisuus aina välittäjältä.

  • Sijainti:Vesikoskenkatu 1 , 32200 Loimaa
  • Kaupungin osa:1
  • Kerroksia:4
  • Asuinpinta-ala102 m²
  • Tontin pinta-ala938.5 m²
  • Kokonaispinta-ala:102 m²
  • Pinta-alojen lisätiedot:Pinta-alan peruste: Yhtiöjärjestyksen mukainen
  • Huoneiston kokoonpano:
  • Huoneita:4
  • Kunto:Erinomainen
  • Lisätietoja vapautumisesta: Sopimuksen mukaan
  • Keittiön varusteet:Liesi, liesituuletin, jääkaappipakastin ja astianpesukone. Liesi: Keraaminen liesi. Työtason materiaali: Parketti. -Keraaminen liesi, liesituuletin, jääkaappi, pakastinkaappi, astianpesukone -Työpöytä, tiskipöytä, kaapistot
  • Parveke: Ei
  • Parvekkeen lisätiedot:Parvekkeen suunta:
  • Kylpyhuoneen varusteet:WC-istuin, suihku, suihkuseinä, pesuallas ja pesukoneliitäntä -Suihku, suihkuseinä, wc, käsienpesuallas, pk-liitäntä -Seinät ja lattia laatoitettu (lattialämmitys)
  • Säilytystilat:Kellarikomero
  • Näkymät:
  • Tehdyt remontit:-Kiinteistö saneerattu asuin- ja liikekiinteistöksi v-2014. -Etupihan kunnostus, asfaltointi ja julkisivumaalaukset v-2014. -Putkiremonttia ei tule, koska uusittu lvis v-2014.
  • Asunnossa sauna: Kyllä
  • Saunan lisätiedot:-Oma sauna Kiuas: Sähkökiuas
  • Asumistyyppi: Oma
  • Vuokrattu: Kyllä
  • Palvelut:Palvelut: -Lähellä kaikki Loimaan keskustan palvelut. Paikallistiedot:
  • Kohde on: Asunto-osake
  • Kiinteistötunnus: 430-1-3-1
  • Lisätiedot:Käyttö- ja luovutusrajoitukset: .
  • Postitoimipaikka:Loimaa
  • Tietoliikennepalvelut:
  • Velaton hinta: 98 000 €
  • Myyntihinta: 84 517 €
  • Neliöhinta:960,78 €/m²
  • Kiinnitykset:960,78 €/m²
  • Lunastuspykälä: Taloyhtiöllä ei lunastusoikeutta. Osakkailla ei lunastusoikeutta.
  • Vastikkeet

  • Hoitovastike:367,20 €
  • Pääomavastike:413,89 €
  • Vastike:781,09 €
  • Yhtiövastike yhteensä: 781,09 € 367,20 €
  • Muut maksut

  • Kiinteistövero:
  • Vesimaksun lisätiedot:Kulutuksen mukaan
  • Uudiskohde: Ei
  • Taloyhtiön nimi:As. Oy Loimaan Oskarinpiha
  • Lisätietoa taloyhtiöstä:-Yhteistilassa sauna, pesuhuone ja takkahuone.
  • Rakennuksen tyyppi:Kerrostalo
  • Rakennusvuosi:1928
  • Huoneistojen lukumäärä:12
  • Liiketilojen pinta-ala:363 m²
  • Liikehuoneistojen määrä8
  • Kerroksia:4
  • Hissi: Kyllä
  • Taloyhtiössä on sauna: Kyllä
  • Rakennusmateriaali:rapattu tiili ja tiili
  • Kattomateriaali:Pelti
  • Kattotyyppi:Harjakatto
  • Energiatodistus:
  • Ilmastointijärjestelmä:Koneellinen
  • Kiinteistön antennijärjestelmä:
  • Isännöinti:Isännöinti Tikakoski Oy, Kimmo Tikakoski, 0400-741556
  • Kaavatilanne:Asemakaava
  • Liikenneyhteydet:Sujuvat yhteydet omalla autolla, hyvät pyöräilytiet ja juna-asema lähellä
  • Rannan (vesistön) tyyppi:
  • Rannan kuvaus:
  • Vesistön kuvaus:
  • Muut rakennukset:
  • Pihan kuvaus:
  • Lämmitys:Kaukolämpö ja kaukolämpö
  • Lisätietoja lämmityksestä:Kaukolämpö ja kaukolämpö
  • Lisätietoja talosta:Kaukolämpö ja kaukolämpö
  • Tontin koko:938.5 m²
  • Tontin omistus:Oma
  • Yhteiset tilat:Kellarikomero
  • Keittiön lattia:Parketti
  • Keittiön seinä:Maali ja tapetti
  • Makuuhuoneen lattia:Parketti
  • Makuuhuoneen seinätMaali ja tapetti
  • Lisätietoja makuuhuoneen varusteista:-Parkettilattiat
  • Kylpyhuoneen lattia:Laatta
  • Kylpyhuoneen seinät:Kaakeli
  • Olohuoneen varusteet-Parkettilattia
  • Olohuoneen lattiaParketti
  • Olohuoneen seinät:
  • Ominaisuudet:
  • Kohde myydään kalustettuna: Ei
  • Vesi ja jätevesi:Vesijohto: Kunnan
  • Viemäröinti: Kunnan
Tyyppi Kerrostalo
Rakennusvuosi 1928
Asuinpinta-ala 102 m²
Huoneita 4
Kerroksia 4
Kaupunki Loimaa
Kaupungin osa 1
Velaton hinta: 98 000 € Myyntihinta: 84 517 € Hoitovastike: 781,09 € € / kk Vastike: 367,20 € € / kk

Tutustu myös näihin kohteisiin:

Vesikoskenkatu 1 , 32200 Loimaa 74 000 €

Omistusasunto

Vesikoskenkatu 13, 32200 LOIMAA 22 000 €

Omistusasunto

Holmanojankatu 3, 32200 LOIMAA 32 000 €

Omistusasunto