Todella siistikuntoinen rivitalokaksio keskustan läheisyydessä!

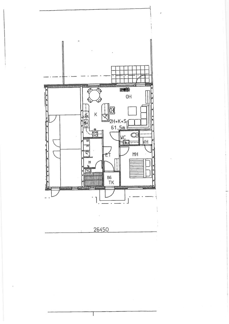
61.5 m² |

Hirvikoskentie 20, 32200 LOIMAA | 2h+k+s=61,5m2

Tervetuloa tutustumaan tähän valoisaan, viihtyisään ja lämminhenkiseen rivitalokotiin Loimaan keskustan läheisyydessä. Vuonna 2006 rakennettu koti hurmaa nykyaikaisilla yksityiskohdillaan ja laadukkailta materiaaleiltaan. Neliöluku, 61 m², on käytetty tehokkaasti sisältäen olohuoneen, makuuhuoneen ja keittiön sekä pesuhuoneen, saunan ja wc:n. Huoneistolle kuuluu myös autokatospaikka.

Varmista kohteen tietojen oikeellisuus aina välittäjältä.

  • Sijainti:Hirvikoskentie 20, 32200 LOIMAA
  • Kaupungin osa:8
  • Kerroksia:1
  • Asuinpinta-ala61.5 m²
  • Tontin pinta-ala2976 m²
  • Kokonaispinta-ala:61.5 m²
  • Pinta-alojen lisätiedot:Pinta-alan peruste: Yhtiöjärjestyksen mukainen
  • Huoneiston kokoonpano:
  • Huoneita:2
  • Kunto:Hyvä
  • Lisätietoja vapautumisesta: Sopimuksen mukaan
  • Keittiön varusteet:Jääkaappipakastin, liesituuletin, liesi, uuni ja astianpesukone. Liesi: Keraaminen liesi. Työtason materiaali: Laatta. -Keraaminen liesi, liesituuletin, jääkaappi/pakastinkaappi, astianpesukone -Työpöytä, tiskipöytä, kaapistot
  • Parveke: Ei
  • Parvekkeen lisätiedot:Parvekkeen suunta:
  • Kylpyhuoneen varusteet:Suihku ja pesukoneliitäntä -Suihku, pk-liitäntä -Seinät ja lattia laatoitettu (lattialämmitys)
  • Säilytystilat:Häkkivarasto ja lämmin ulkovarasto
  • Näkymät:-Läpi talon, itä-länsi
  • Tehdyt remontit:-A-talon parveke- ja autokatostolpat maalattu v-2011. -Parvekesermit uusittu v-2011. -Valokuitukaapeli asennus tekniseen tilaan v-2013! -Energiatodistus v-2014. -Vuotavat rännit tiivistetty v-2015. -Parvekelasien uusimissuunnittelu v-2015. -Irronneiden ikkunalistojen korjausta (ikkunoiden sisäpuolelta) v-2015. -Ilmanvaihtokanavien puhdistus- ja säätö v-2017. -Asuinrakennusten julkisivujen maalaus v-2019. -Autokatosrakennuksen ulkosivujen maalaus v-2020. -B-talon takapihan väliaitojen ja terassien uusiminen v-2020. -Liittyminen Lounean valokuituun v-2020. -Kiinteistön ulkovalaistuksen uusiminen v-2020. -Vesikaton sammaleen poisto v-2022. -Jätekatoksen rakentaminen v-2023. -B-talon katon sammaleen poistokäsittely v-2023.
  • Asunnossa sauna: Kyllä
  • Saunan lisätiedot: Kiuas: Sähkökiuas
  • Asumistyyppi: Oma
  • Vuokrattu: Ei
  • Palvelut:Palvelut: -Loimaan kaupungin keskustan palvelut -Isot marketit Paikallistiedot: -Lähellä isot marketit
  • Kohde on: Asunto-osake
  • Kiinteistötunnus:
  • Lisätiedot:Käyttö- ja luovutusrajoitukset: .
  • Postitoimipaikka:LOIMAA
  • Tietoliikennepalvelut:
  • Velaton hinta: 117 000 €
  • Myyntihinta: 117 000 €
  • Neliöhinta:1 902,44 €/m²
  • Kiinnitykset:1 902,44 €/m²
  • Lunastuspykälä: Taloyhtiöllä ei lunastusoikeutta. Osakkailla ei lunastusoikeutta.
  • Vastikkeet

  • Hoitovastike:215,25 €
  • Pääomavastike:
  • Vastike:215,25 €
  • Yhtiövastike yhteensä: 215,25 € 215,25 €
  • Muut maksut

  • Kiinteistövero:
  • Vesimaksun lisätiedot:Kulutuksen mukaan
  • Uudiskohde: Ei
  • Taloyhtiön nimi:Asunto Oy Loimaan Vesikoskenpuistola
  • Lisätietoa taloyhtiöstä:
  • Rakennuksen tyyppi:Rivitalo
  • Rakennusvuosi:2006
  • Huoneistojen lukumäärä:7
  • Liiketilojen pinta-ala:0 m²
  • Liikehuoneistojen määrä0
  • Kerroksia:1
  • Hissi: Ei
  • Taloyhtiössä on sauna: Ei
  • Rakennusmateriaali:Puu ja tiili
  • Kattomateriaali:Tiili
  • Kattotyyppi:Harjakatto
  • Energiatodistus:Kyllä
  • Ilmastointijärjestelmä:Koneellinen tulo ja poisto
  • Kiinteistön antennijärjestelmä:
  • Isännöinti:Uniko Oy, Jukka Aaltonen, 040-5125800
  • Kaavatilanne:Asemakaava
  • Liikenneyhteydet:Bussipysäkki lähellä ja hyvät pyöräilytiet
  • Rannan (vesistön) tyyppi:
  • Rannan kuvaus:
  • Vesistön kuvaus:
  • Muut rakennukset:
  • Pihan kuvaus:
  • Lämmitys:Kaukolämpö
  • Lisätietoja lämmityksestä:Kaukolämpö
  • Lisätietoja talosta:Kaukolämpö
  • Tontin koko:2976 m²
  • Tontin omistus:Oma
  • Yhteiset tilat:Häkkivarasto ja lämmin ulkovarasto
  • Keittiön lattia:Laatta
  • Keittiön seinä:Maali
  • Makuuhuoneen lattia:Parketti
  • Makuuhuoneen seinätTapetti ja maali
  • Lisätietoja makuuhuoneen varusteista:-Parkettilattia
  • Kylpyhuoneen lattia:Laatta
  • Kylpyhuoneen seinät:Kaakeli
  • Olohuoneen varusteet
  • Olohuoneen lattiaParketti
  • Olohuoneen seinät:Tapetti ja maali
  • Ominaisuudet:
  • Kohde myydään kalustettuna: Ei
  • Vesi ja jätevesi:Vesijohto: Kunnan
  • Viemäröinti: Kunnan
Tyyppi Rivitalo
Rakennusvuosi 2006
Asuinpinta-ala 61.5 m²
Huoneita 2
Kerroksia 1
Kaupunki LOIMAA
Kaupungin osa 8
Velaton hinta: 117 000 € Myyntihinta: 117 000 € Hoitovastike: 215,25 € € / kk Vastike: 215,25 € € / kk

Tutustu myös näihin kohteisiin:

Kaunistonkatu 7, 32200 LOIMAA 79 500 €

Omistusasunto

Moisionkatu 2, 32200 LOIMAA 151 200 €

Omistusasunto

Savipellonkatu 4, 32200 Loimaa 490 € / kk

Vuokra-asunto