80 m² |

Kaunismäenkatu 3, 32200 Loimaa |

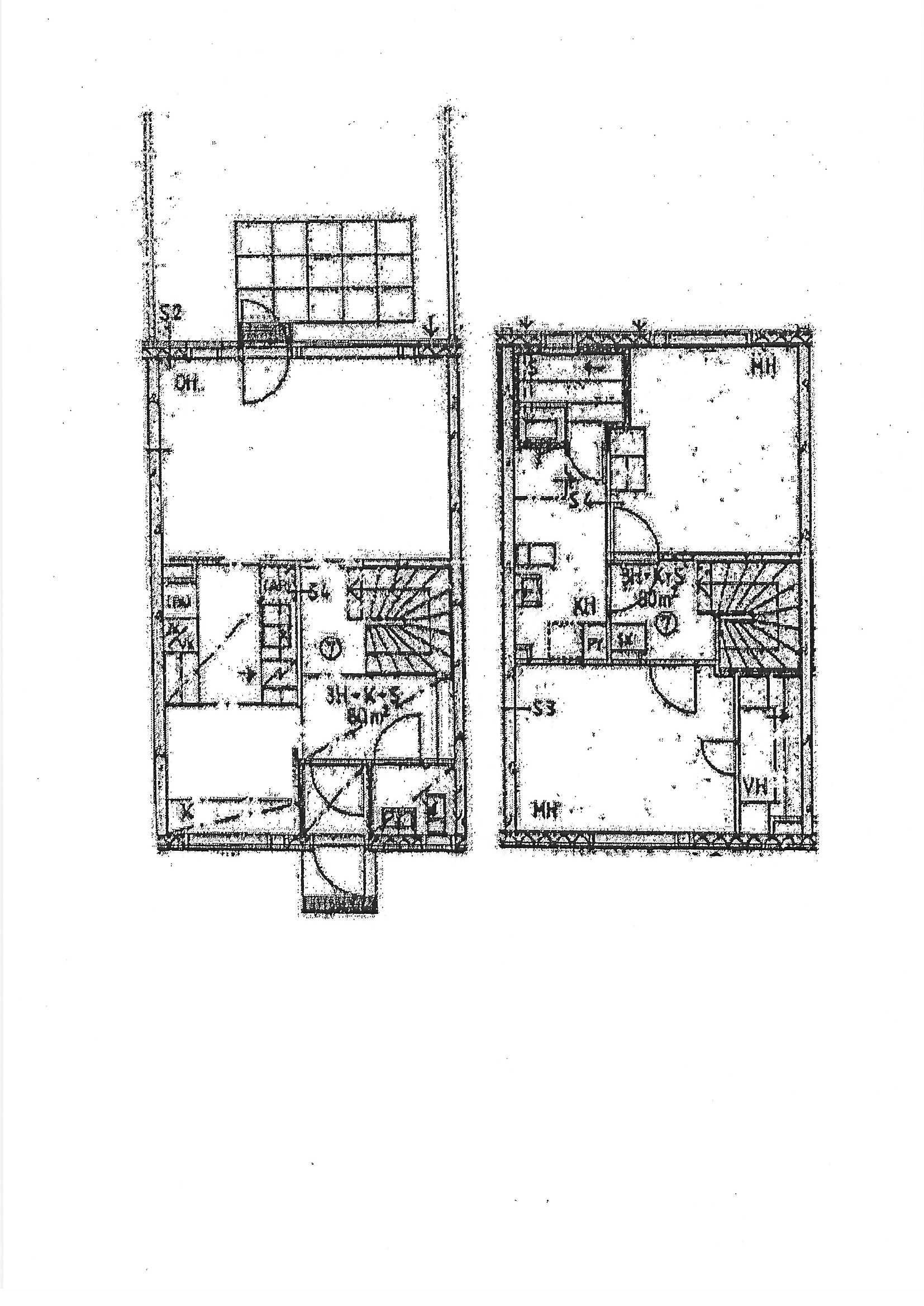
Kauniilla Kaunismäenkadulla Loimaalla sijaitsee valoisa ja kodikas rivitaloasunto, joka tarjoaa mukavuutta ja toimivuutta kahdessa kerroksessa. Tämä 80 m² koti on rakennettu vuonna 1989 ja on hyvässä kunnossa. Asunto on ihanteellinen perheelle, joka arvostaa rauhallista ympäristöä ja hyviä kulkuyhteyksiä. Alueella on erinomaiset liikuntamahdollisuudet, kuten jäähalli, Padel-halli ja kuntoportaat, jotka ovat kaikki lähellä. Myös koulut ja päiväkodit sijaitsevat kätevästi lähistöllä, mikä tekee arjesta sujuvaa lapsiperheille. Asunnossa on kaksi makuuhuonetta, tilava olohuone, käytännöllinen keittiö sekä sauna, jossa rentoutua päivän päätteeksi. Terassi tarjoaa mukavan paikan nauttia ulkoilmasta ja rauhallisesta ympäristöstä. Taloyhtiössä on myös ulkovarasto ja autokatospaikka. Tämä koti on erinomainen valinta perheelle, joka etsii toimivaa ja viihtyisää asuntoa rauhalliselta alueelta. Tartu tilaisuuteen ja tee tästä asunnosta uusi kotisi!

Varmista kohteen tietojen oikeellisuus aina välittäjältä.

  • Sijainti:Kaunismäenkatu 3, 32200 Loimaa
  • Kaupungin osa:6
  • Kerroksia:2
  • Asuinpinta-ala80 m²
  • Tontin pinta-ala2245 m²
  • Kokonaispinta-ala:80 m²
  • Pinta-alojen lisätiedot:Pinta-alan peruste: Yhtiöjärjestyksen mukainen
  • Huoneiston kokoonpano:
  • Huoneita:3
  • Kunto:Hyvä
  • Lisätietoja vapautumisesta: Sopimuksen mukaan
  • Keittiön varusteet:Liesi, uuni, jääkaappipakastin ja astianpesukone. Liesi: Keraaminen liesi. Työtason materiaali: Laminaatti. -Keraaminen liesi, liesituuletin, jääkaappi/pakastinkaappi, astianpesukone -Työpöytä, tiskipöytä, kaapistot -laminaattilattia
  • Parveke: Ei
  • Parvekkeen lisätiedot:Parvekkeen suunta:
  • Kylpyhuoneen varusteet:WC-istuin, suihku, pesuallas ja pesukoneliitäntä -Suihku, wc-istuin, käsienpesuallas, pk-liitäntä -Seinät laatoitettu, lattiassa muovimatto
  • Säilytystilat:Kylmä ulkovarasto
  • Näkymät:-Läpi talon, Pohjoinen-etelä
  • Tehdyt remontit:-Kiinteistön ulkomaalaus v-97 -Autokatos rakennettu v-01 -Liittyminen kaukolämpöön v-02 - -Ulko-ovien ja lukitusten uusiminen -09 (Abloy Exec) -Ilmanvaihtokanavien puhdistus ja säätö v-2010. -Lämpökanaalin uusiminen (käyttövesi + lämmitys) v-2010. -Patteritermostaattien uusiminen v-2010. -Kaukolämmön lämminvesivirran tarkastus v-2010. -Terassiovien uusiminen (7 kpl) v-2013. -Autokatokseen johtavan maakaapelin korjaus v-2015. -Matalan rakennuksen tiilijulkisivun pesu v-2015. -Takapihan huoneistokohtaiset puiset väliaidat uusittu v-2016. -Sisäänkäynnin betoniraput korjattu as. 5-8 v-2016. -Salaojat tarkastettu v-2016. -Asuinhuoneistojen raitisilmaventtiilin suodattimet uusittu v-2017. -Sisäänkäynnin betoniraput korjattu as. 1-4 v-2017. -Kattojen ja rännien puhdistus sammaleesta v-2017. -Ikkunoiden ja B-talon julkisivujen puuosien uusiminen v-2018. -IV-kanavien puhdistus ja säätö v-2018. -Huoneistokohtaiset valokuituliittymät v-2018. -Katto-, julkisivu-, sadevesi- ja pihan toteutussuunnittelu v-2021.
  • Asunnossa sauna: Kyllä
  • Saunan lisätiedot: Kiuas: Sähkökiuas
  • Asumistyyppi: Oma
  • Vuokrattu: Ei
  • Palvelut:Palvelut: -Lähellä harrastuspaikat, jäähalli, Padel-halli, kuntoportaat, kuntoreitti Paikallistiedot:
  • Kohde on: Asunto-osake
  • Kiinteistötunnus: 430-6-23-4
  • Lisätiedot:Käyttö- ja luovutusrajoitukset: .
  • Postitoimipaikka:Loimaa
  • Tietoliikennepalvelut:
  • Velaton hinta: 76 000 €
  • Myyntihinta: 46 653 €
  • Neliöhinta:950 €/m²
  • Kiinnitykset:950 €/m²
  • Lunastuspykälä: Taloyhtiöllä ei lunastusoikeutta. Osakkailla ei lunastusoikeutta.
  • Vastikkeet

  • Hoitovastike:364 €
  • Pääomavastike:274,60 €
  • Vastike:638,60 €
  • Yhtiövastike yhteensä: 638,60 € 364 €
  • Muut maksut

  • Kiinteistövero:
  • Vesimaksun lisätiedot:Kulutuksen mukaan
  • Uudiskohde: Ei
  • Taloyhtiön nimi:As. Oy Kaunismäenkatu 3C
  • Lisätietoa taloyhtiöstä:
  • Rakennuksen tyyppi:Rivitalo
  • Rakennusvuosi:1989
  • Huoneistojen lukumäärä:8
  • Liiketilojen pinta-ala:0 m²
  • Liikehuoneistojen määrä0
  • Kerroksia:2
  • Hissi: Ei
  • Taloyhtiössä on sauna: Ei
  • Rakennusmateriaali:Puu ja tiili
  • Kattomateriaali:Pelti
  • Kattotyyppi:Harjakatto
  • Energiatodistus:Kyllä
  • Ilmastointijärjestelmä:
  • Kiinteistön antennijärjestelmä:
  • Isännöinti:Hemman Isännöinti Oy, Samuli Rautu, 050-4688150
  • Kaavatilanne:Asemakaava
  • Liikenneyhteydet:Juna-asema lähellä, hyvät pyöräilytiet ja sujuvat yhteydet omalla autolla
  • Rannan (vesistön) tyyppi:
  • Rannan kuvaus:
  • Vesistön kuvaus:
  • Muut rakennukset:
  • Pihan kuvaus:
  • Lämmitys:Kaukolämpö
  • Lisätietoja lämmityksestä:Kaukolämpö
  • Lisätietoja talosta:Kaukolämpö
  • Tontin koko:2245 m²
  • Tontin omistus:Vuokra
  • Yhteiset tilat:Kylmä ulkovarasto
  • Keittiön lattia:Laminaatti
  • Keittiön seinä:Maali
  • Makuuhuoneen lattia:Laminaatti
  • Makuuhuoneen seinätMaali
  • Lisätietoja makuuhuoneen varusteista:-Laminaattilattiat
  • Kylpyhuoneen lattia:Muovimatto
  • Kylpyhuoneen seinät:Kaakeli
  • Olohuoneen varusteet-Laminaattilattia
  • Olohuoneen lattiaLaminaatti
  • Olohuoneen seinät:Maali
  • Ominaisuudet:
  • Kohde myydään kalustettuna: Ei
  • Vesi ja jätevesi:Vesijohto:
  • Viemäröinti:
Tyyppi Rivitalo
Rakennusvuosi 1989
Asuinpinta-ala 80 m²
Huoneita 3
Kerroksia 2
Kaupunki Loimaa
Kaupungin osa 6
Velaton hinta: 76 000 € Myyntihinta: 46 653 € Hoitovastike: 638,60 € € / kk Vastike: 364 € € / kk

Tutustu myös näihin kohteisiin:

Vesikoskenkatu 48, 32200 LOIMAA 47 000 €

Omistusasunto

Vesikoskenkatu 36, 32200 LOIMAA 22 000 €

Omistusasunto

Loimijoentie 76, 32440 Loimaa 390 € / kk

Vuokra-asunto