Remontoitu, viihtyisä rivitalokolmio Kaunismäen alueella!

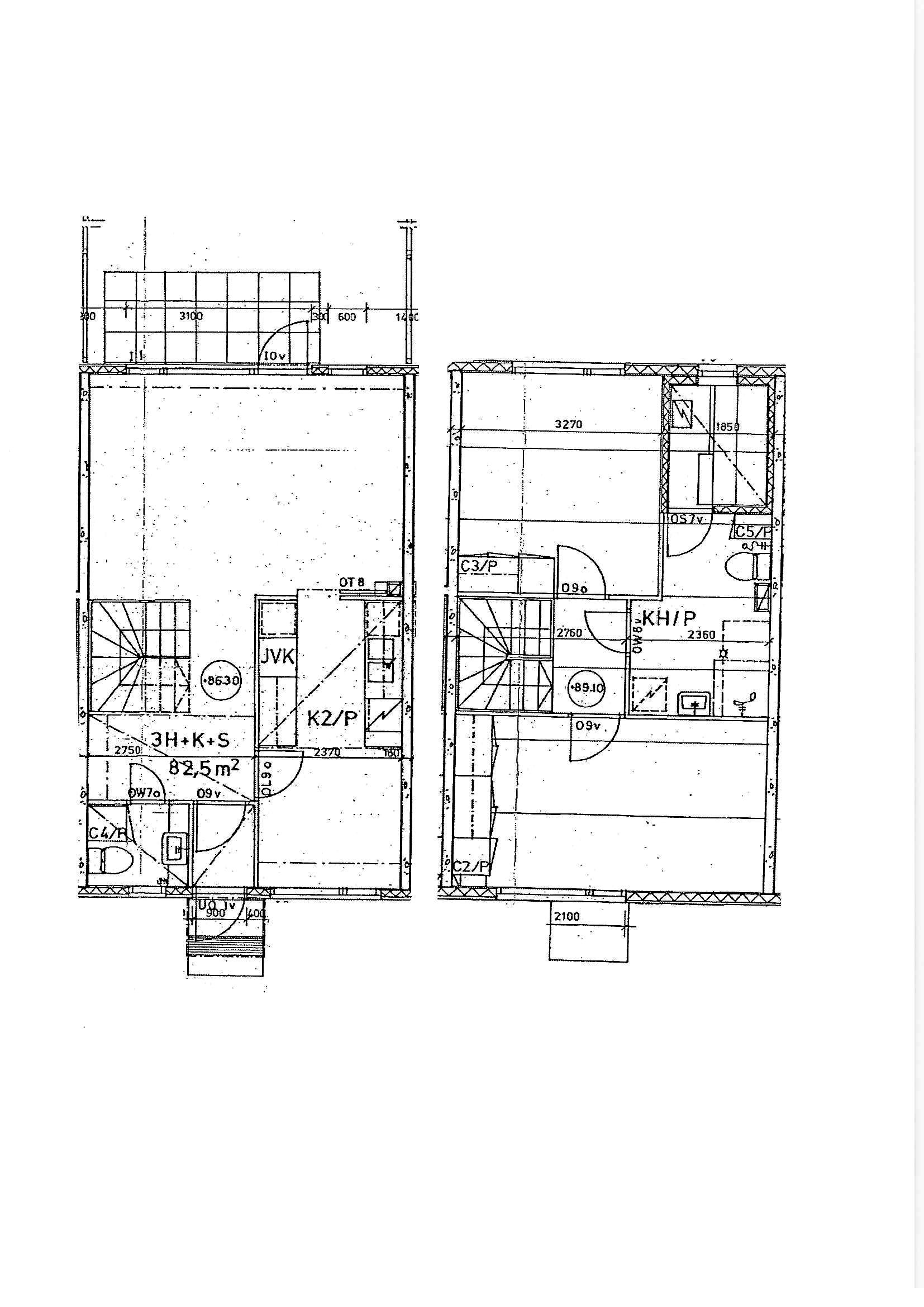
82.5 m² |

Kaunismäenkatu 3, 32200 LOIMAA |

Kaunis ja valoisa rivitaloasunto Loimaan rauhallisella alueella kutsuu uusia asukkaita viihtymään. Tämä kaksikerroksinen koti tarjoaa tilavat 82,5 m² asuintilat, jotka ovat täydelliset perheelle. Asunnossa on kaksi makuuhuonetta, joissa on parkettilattiat, ja olohuone, joka avautuu kodikkaalle terassille. Keittiö on hyvin varusteltu ja käytännöllinen, sisältäen muun muassa keraamisen lieden ja astianpesukoneen. Kylpyhuone ja erillinen WC on laatoitettu, ja saunassa voi rentoutua sähkökiukaan lämmössä. Sijainti on erinomainen – kaikki Loimaan keskustan palvelut, koulut ja päiväkodit ovat lähellä. Lisäksi alueella on hyvät liikenneyhteydet, kuten pyörätiet ja lähistöllä sijaitseva juna-asema, joka helpottaa liikkumista. Harrastusmahdollisuudet, kuten jäähalli ja padel-kenttä, ovat myös käden ulottuvilla. Asunto-osakeyhtiö on hyvin hoidettu, ja viimeisimmät remontit, kuten huoneistokohtaisten palovaroittimien asennus, on juuri tehty. Tulevat remontit, kuten sadevesi- ja salaojahanke, on suunniteltu huolellisesti. Tartu tilaisuuteen ja tee tästä kodista oma rauhan tyyssijasi Loimaan kauniissa maisemissa.

Varmista kohteen tietojen oikeellisuus aina välittäjältä.

  • Sijainti:Kaunismäenkatu 3, 32200 LOIMAA
  • Kaupungin osa:6
  • Kerroksia:2
  • Asuinpinta-ala82.5 m²
  • Tontin pinta-ala2301 m²
  • Kokonaispinta-ala:82.5 m²
  • Pinta-alojen lisätiedot:Pinta-alan peruste: Yhtiöjärjestyksen mukainen
  • Huoneiston kokoonpano:
  • Huoneita:3
  • Kunto:Hyvä
  • Lisätietoja vapautumisesta: Heti
  • Keittiön varusteet:Jääkaappipakastin, liesi, uuni, astianpesukone ja liesituuletin. Liesi: Keraaminen liesi. Työtason materiaali: Parketti. -Keraaminen liesi, liesituuletin, astianpesukone, jääkaappi/pakastinkaappi -Työpöytä, tiskipöytä, kaapistot -Parkettilattia
  • Parveke: Ei
  • Parvekkeen lisätiedot:Parvekkeen suunta:
  • Kylpyhuoneen varusteet:WC-istuin, suihku, suihkuseinä, pesuallas ja pesukoneliitäntä -Suihku, suihkuseinä. wc-istuin, käsienpesuallas, pk-liitäntä -Seinät ja lattia laatoitettu
  • Säilytystilat:Kylmä ulkovarasto
  • Näkymät:-Läpi talon, pohjoinen-etelä
  • Tehdyt remontit:-Kiinteistön ulkomaalaus v-1996. -Liittyminen kaukolämpöön v-2002. -Ulko-ovien uusiminen v-2003. -Ilmanvaihtokanavien puhdistus ja säätö v-2010. -Lämpökanaalin uusiminen (käyttövesi ja lämmitys) matala talo v-2010. -Patteritermostaattien uusiminen v-10. -Kaukolämmön vesivirtamäärän tarkastus v-2010. -Huoneistojen märkätilan kosteus-/kuntokartoitus v-2014. -Huoneistojen ikkunoiden ja terassien ovet kuntotarkastettu v-2015. -Salaojat tarkastettu v-2016. -Kattojen ja rännien puhdistus sammaleesta v-2017. -Huoneistokohtaiset valokuituliittymät (VDSL-tekniikka) v-2018. -Vesikatto- ja julkisivuhanke v-2022. -Ikkunoiden ja terassiovien uusiminen v-2022. -Lukituksen uusiminen (Abloy Easy) v-2022. -Vesikatto- ja julkisivuhanke valmistunut syksyllä v-2022. -Huippuimureiden uusinta ja IV järjestelmän muutos huoneistokohtaiseksi v-2022. -Ryhmäkorjaushankkeen takuutarkastus v-2024. -Huoneistojen väliaitojen uusiminen v-2024. -Huoneistokohtaisten palovaroitinten asentaminen v-2025
  • Asunnossa sauna: Kyllä
  • Saunan lisätiedot: Kiuas: Sähkökiuas
  • Asumistyyppi: Oma
  • Vuokrattu: Ei
  • Palvelut:Palvelut: -Lähellä kaikki Loimaan kaupungin keskustan palvelut. -Lähellä harrastuspaikat, jäähalli, Padel-halli, kuntoportaat, kuntorata Paikallistiedot:
  • Kohde on: Asunto-osake
  • Kiinteistötunnus: 430-6-23-2
  • Lisätiedot:Käyttö- ja luovutusrajoitukset: .
  • Postitoimipaikka:LOIMAA
  • Tietoliikennepalvelut:
  • Velaton hinta: 79 000 €
  • Myyntihinta: 57 670 €
  • Neliöhinta:957,58 €/m²
  • Kiinnitykset:957,58 €/m²
  • Lunastuspykälä: Taloyhtiöllä ei lunastusoikeutta. Osakkailla ei lunastusoikeutta.
  • Vastikkeet

  • Hoitovastike:375,83 €
  • Pääomavastike:187,38 €
  • Vastike:563,21 €
  • Yhtiövastike yhteensä: 563,21 € 375,83 €
  • Muut maksut

  • Kiinteistövero:
  • Vesimaksun lisätiedot:25 € / hlö / kk
  • Uudiskohde: Ei
  • Taloyhtiön nimi:As Oy Kaunismäenkatu 3 A
  • Lisätietoa taloyhtiöstä:
  • Rakennuksen tyyppi:Rivitalo
  • Rakennusvuosi:1983
  • Huoneistojen lukumäärä:8
  • Liiketilojen pinta-ala:0 m²
  • Liikehuoneistojen määrä0
  • Kerroksia:2
  • Hissi: Ei
  • Taloyhtiössä on sauna: Ei
  • Rakennusmateriaali:Puu ja tiili
  • Kattomateriaali:Pelti
  • Kattotyyppi:Harjakatto
  • Energiatodistus:Kyllä
  • Ilmastointijärjestelmä:Huoneistokohtainen poisto
  • Kiinteistön antennijärjestelmä:
  • Isännöinti:Hemman Isännöinti Oy, Samuli Rautu, 050-4688150
  • Kaavatilanne:Asemakaava
  • Liikenneyhteydet:Hyvät pyöräilytiet, sujuvat yhteydet omalla autolla ja juna-asema lähellä
  • Rannan (vesistön) tyyppi:
  • Rannan kuvaus:
  • Vesistön kuvaus:
  • Muut rakennukset:
  • Pihan kuvaus:
  • Lämmitys:Kaukolämpö
  • Lisätietoja lämmityksestä:Kaukolämpö
  • Lisätietoja talosta:Kaukolämpö
  • Tontin koko:2301 m²
  • Tontin omistus:Vuokra
  • Yhteiset tilat:Kylmä ulkovarasto
  • Keittiön lattia:Parketti
  • Keittiön seinä:Maali ja tapetti
  • Makuuhuoneen lattia:Parketti
  • Makuuhuoneen seinätMaali ja tapetti
  • Lisätietoja makuuhuoneen varusteista:-Parkettilattiat
  • Kylpyhuoneen lattia:Laatta
  • Kylpyhuoneen seinät:Kaakeli
  • Olohuoneen varusteet-Parkettilattia
  • Olohuoneen lattiaParketti
  • Olohuoneen seinät:Maali ja tapetti
  • Ominaisuudet:
  • Kohde myydään kalustettuna: Ei
  • Vesi ja jätevesi:Vesijohto:
  • Viemäröinti:
Tyyppi Rivitalo
Rakennusvuosi 1983
Asuinpinta-ala 82.5 m²
Huoneita 3
Kerroksia 2
Kaupunki LOIMAA
Kaupungin osa 6
Velaton hinta: 79 000 € Myyntihinta: 57 670 € Hoitovastike: 563,21 € € / kk Vastike: 375,83 € € / kk

Tutustu myös näihin kohteisiin:

Vesikoskenkatu 36, 32200 LOIMAA 397 € / kk

Vuokra-asunto

Kalevalankatu 13, 32200 Loimaa 520 € / kk

Vuokra-asunto

Kalevalankatu 9, 32200 LOIMAA 60 000 €

Omistusasunto